DEANSGATE, TETTENHALL ROAD
Amenities and Key Features
- UNIQUE PERIOD GRADE II LISTED BUILDING
- CONFERENCE AND MEETING ROOMS
- EXCLUSIVE TENANTS AND GUESTS ONLY BUSINESS LOUNGE
- LATEST TECHNOLOGY VOIP BASED TELEPHONE SYSTEM
- KITCHENETTE AND FACILITIES
- CCTV
- ACCESS CONTROL AND INTERCOM SYSTEM
- NETWORK AND IT SECURITY
- ALL UTILITY BILLS INCLUDED
Property Description
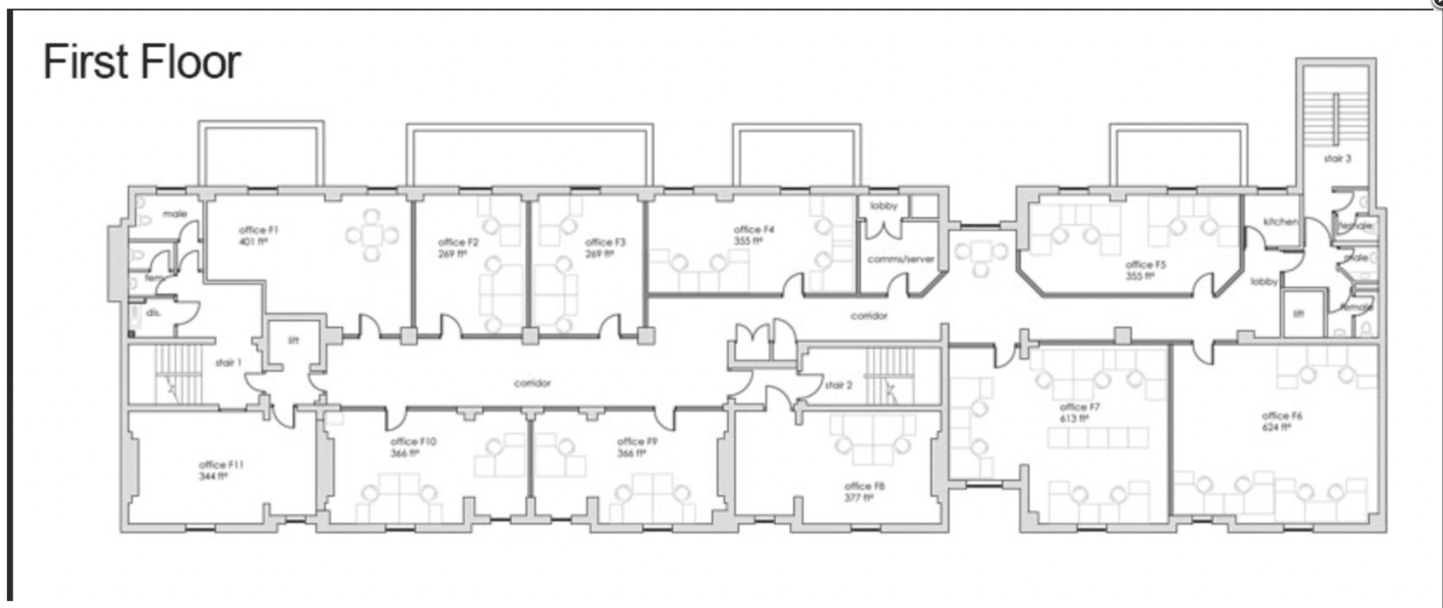
OFFICE F9 - Located on the first floor
This landmark Grade II listed property is attractive and prominent and dates back to the early 18th century, it has a retained listed facade and period feature.
Building Features:
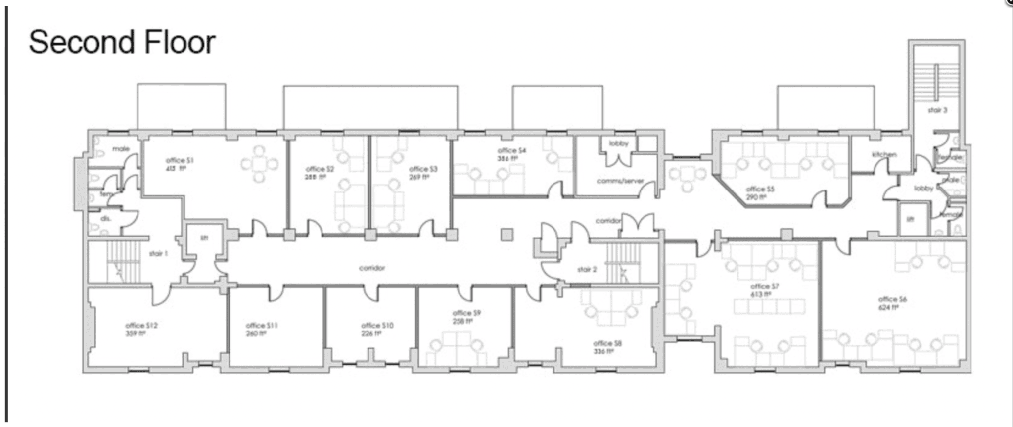
- 28 luxury serviced offices, all with external windows and natural daylight
- Parking for up to 82 cars (parking based on sqft taken)
- Conference and meeting rooms - with video conference facilities
- Two passenger lifts - one on either side of the building
- Exclusive 'tenants and guests only' Business Lounge
- Each floor has a contemporary fitted kitchenette with fridge freezer, Quooker (constant hot water tap), Dyson V hand dryer, storage cupboard and sink basin
- Electronic gated entrance and exit, front and rear
- Manned reception concierge service
- HD IP CCTV system
- Each office has state of the art VOIP based telephone system
- Each office has its own private network, eliminating the need for additional cabling, switches and routers
- All offices are protected by advanced hardware firewalls and secure gateways
- Fibre broadband available in every office, ensuring that every office has a reliable, super-fast lease-line connection
- All utility bills are included
- Office cleaning and communal areas included
Please note that the price listed does not include VAT.
Similar Properties
-
DEANSGATE, TETTENHALL ROAD
FULLY SERVICED OFFICE SPACE IN A SELF CONTAINED OFFICE BUILDING WHICH HAS BEEN RECENTLY REFURBISHED TO A VERY HIGH SPECIFICATION£15,855 pa































